Property Detail

15031 Valencia

Lake Elsinore CA 92530

$685,000

Status: Active

Property Details

Description

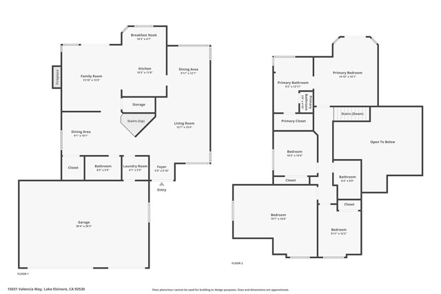
Welcome to a beautifully updated Pool Home that perfectly blends comfort, style, and thoughtful detail throughout. From the moment you arrive, the custom paver courtyard, newer wrought-iron side gate, and lush low-maintenance landscaping with artificial turf front and back create stunning curb appeal. The property also features a collection of mature fruit trees including three lemon varieties, a blood orange tree, two avocado trees, and a grape vine—your own backyard orchard. Inside, the home has been opened up to create a true open-concept layout. The former downstairs fourth bedroom has been removed, allowing for an expansive main living area, complete with a custom barn door pantry. The Luxury Vinyl Waterproof flooring flows seamlessly throughout the home and up the stairs, where the first three stair treads were widened to create a more dramatic and welcoming entrance. New custom floor molding, LED recessed lighting with dimmers (approximately 40 lights throughout), and modern LED ceiling fans in every bedroom and additional common areas add both comfort and style. The kitchen has been tastefully updated with professionally refinished cabinetry, new backsplash, newer tile flooring, and newer GE stove and dishwasher. Additional updated tile flooring can be found in the foyer, laundry room, and bathrooms. The master suite has been fully remodeled and offers a spa-like retreat with elegant tiled surrounds, a beautiful freestanding soaking tub, dual vanities, upgraded lighting, mirrors, and a center linen tower for added storage. Step outside into your private oasis. The pool has been remodeled and features a newer variable speed pump, beautiful tile work, and LED lighting—perfect for evening enjoyment. A newer concrete patio and multiple outdoor lighting systems, including dusk-to-dawn sensors and additional security lighting, enhance both ambiance and functionality. Significant system upgrades include: Paid-off Solar Panel System, Newer 240V Electrical Panel (approx. 3 years old), Newer A/C Unit (approx. 3 years old), Newer Water Heater (approx. 3 years old), Water Softener, Two newer sliding doors (approx. 3 years old). This home is truly move-in ready, with high-quality improvements already completed for peace of mind and lasting enjoyment. With its modern upgrades, beautiful indoor/outdoor living, and stylish touches throughout, this property is a rare find. NO MELLO-ROOS HERE, PAY LOW TAXES!

Map Location

Listing provided courtesy of Oscar Tortola of Oscar Tortola Group Real Estate Services. Last updated 2025-11-22 09:16:48.000000. Listing information © 2025 CRMLS.

The Lineup

The Lineup

admin Real estate https://static.royacdn.com/Site-02ef49e0-f0f4-404c-8ad8-e40f9a412cfb/inside_pages/about_img.jpg realtor https://static.royacdn.com/Site-02ef49e0-f0f4-404c-8ad8-e40f9a412cfb/inside_pages/about_img.jpg