Property Detail

3631 Windspun

Huntington Beach CA 92649

$1,630,000

Status: Active

Property Details

Description

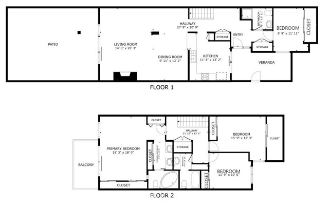
**Exceptional Value at New Price– Don’t Miss out!!**Discover Coastal Luxury Living. Spectacular Waterfront Home in Huntington Harbour's Exclusive Seagate Community. Embrace the coveted Southern California lifestyle in this exceptional 4-bedroom, 3-bathroom waterfront residence, where lagoon-side living meets sophisticated design. This well-maintained home captures the essence of luxury coastal living with its harmonious blend of indoor and outdoor spaces. DISTINCTIVE FEATURES: • Private 30-foot boat dock (#24) with direct main channel access • Expansive waterfront patio deck for entertaining • Detached 2-car garage • Intimate courtyard with seamless indoor-outdoor flow • Rich wood flooring throughout main living areas MAIN LEVEL HIGHLIGHTS: The open-concept main floor showcases a chef's kitchen appointed with premium granite countertops, flowing into an inviting family room anchored by an eye-catching stone fireplace. A formal dining room provides the perfect setting for elegant entertaining, while a versatile first-floor bedroom with full bath offers flexibility as a guest suite or home office. UPPER LEVEL RETREAT: The primary suite stands as a testament to luxurious design, featuring: • Dramatic vaulted ceilings • Private water-view balcony • Spa-inspired ensuite bathroom with soaking tub • Generous wardrobe space • Abundant natural light • Two additional light-filled bedrooms share a beautifully appointed bathroom, while a spacious attic presents possibilities for future customization. RESORT-STYLE AMENITIES: Seagate residents enjoy access to an impressive array of community features: • Multiple swimming pools • Tennis courts • Sports facilities • Manicured parks and water features • Professional landscape maintenance • Comprehensive dock maintenance • Water and refuse services LIFESTYLE AND LOCATION: Immerse yourself in the waterfront lifestyle with direct access to Huntington Harbour's recreational paradise. Launch your kayak or paddleboard from your private deck, or set sail from your personal dock. This rare offering combines the serenity of waterfront living with the convenience of Orange County's most desirable coastal location. Experience the epitome of Southern California luxury living – schedule your private showing today.

Map Location

Listing provided courtesy of Amy Wilson of Redfin Corporation. Last updated 2026-05-02 08:30:19.000000. Listing information © 2025 CRMLS.

The Lineup

The Lineup

admin Real estate https://static.royacdn.com/Site-02ef49e0-f0f4-404c-8ad8-e40f9a412cfb/inside_pages/about_img.jpg realtor https://static.royacdn.com/Site-02ef49e0-f0f4-404c-8ad8-e40f9a412cfb/inside_pages/about_img.jpg