Property Detail

755 Hillgrove

Chico CA 95926

$499,900

Status: Active

Property Details

Description

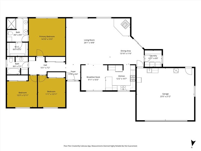
On the west side of town, discover the rural lifestyle you've been dreaming of at Big Chico Creek Estates. Enjoy wide, curving streets with sidewalks, rich soil, and large lots. This charming ranch-style home features a welcoming front porch. Inside, the family kitchen features an eating area, ample cabinets and counter space, and a window above the sink that overlooks the front yard. The extra-large family room can easily accommodate a dining area and features a cozy gas wood stove. The three bedrooms include a spacious primary suite with a walk-in closet and an en-suite bath featuring a dual-sink vanity and a step-in shower. For added convenience, you'll find an individual laundry room with extra cabinetry for storage. The backyard is a true gem, offering a covered patio perfect for morning coffee. This expansive lot is a gardener's delight, graced with mature fruit trees such as peache and fig, offering a taste of homegrown sweetness.

Map Location

Listing provided courtesy of Becky Williams of Keller Williams Realty Chico Area. Last updated 2025-11-21 09:18:42.000000. Listing information © 2025 CRMLS.

The Lineup

The Lineup

admin Real estate https://static.royacdn.com/Site-02ef49e0-f0f4-404c-8ad8-e40f9a412cfb/inside_pages/about_img.jpg realtor https://static.royacdn.com/Site-02ef49e0-f0f4-404c-8ad8-e40f9a412cfb/inside_pages/about_img.jpg