Property Detail

11514 Mollyknoll

Whittier CA 90604

$925,000

Status: Active

Property Details

Description

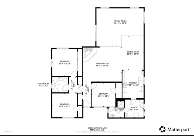
*Price Improvement ** Welcome to this wonderful 3-bedroom, 2-bath family home, centrally located in a desirable and established neighborhood close to shopping, dining, and popular scenic hiking/biking trails. This home features a semi-open floor plan with a step-down family room, where glass sliders on each side open to two separate outdoor sitting areas—perfect for entertaining or quiet relaxation in an intimate and private space. The spacious living room invites you to cozy up by the gas/wood-burning fireplace, creating a warm and inviting atmosphere for gatherings. The remodeled kitchen showcases key upgrades including new cabinetry, elegant countertops, modern lighting, a farmhouse sink, and tasteful fixtures, blending style and functionality beautifully. The home also offers a separate laundry room, a covered service porch with garage access, tankless water heater, water filters and a recently renovated bathroom retreat featuring a luxurious oversized shower with spa-like finishes and clean tile work. Two of the bedrooms have been freshly painted, and plantation shutters adorn all bedrooms and the family room for added charm. Outside, enjoy a private, usable front yard accented with pavers, a water fountain feature, tropical foliage and fruit tree, providing both tranquility and privacy. The larger-than-standard garage and newer roof add to the home’s appeal and peace of mind. With its thoughtful upgrades, traditional character, and room for your personal finishing touches, this property presents an extraordinary opportunity to create your perfect family haven for years to come, in a sought-after family friendly neighborhood.

Map Location

Listing provided courtesy of Mercedes De La Cruz of Century 21 Allstars. Last updated 2026-05-02 08:30:19.000000. Listing information © 2025 CRMLS.

The Lineup

The Lineup

admin Real estate https://static.royacdn.com/Site-02ef49e0-f0f4-404c-8ad8-e40f9a412cfb/inside_pages/about_img.jpg realtor https://static.royacdn.com/Site-02ef49e0-f0f4-404c-8ad8-e40f9a412cfb/inside_pages/about_img.jpg