Property Detail

2311 Beverly Glen

Los Angeles CA 90077

$129,000

Status: Active

Property Details

Description

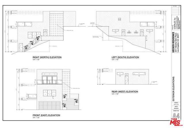
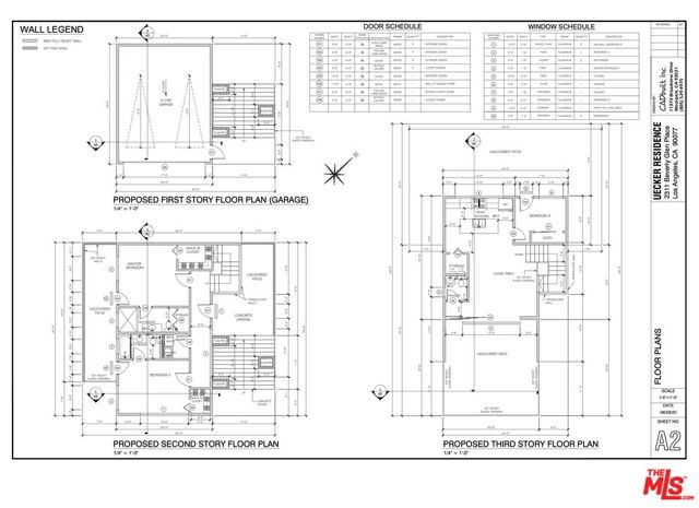
Owner/builder, Developer special! TWO adjacent buildable lots, 2311 Beverly Glen Place (APN 4380-003-002) and 2312 Bushrod Lane (APN 4380-003-023) are being offered as a package. Build two houses or tie lots and create a larger home in this beautiful nook off busy Beverly Glen Blvd, with a light! Using total sq footage, zoning would allow a 1,900 sq ft home...add one 30% bonus and an over 2,400 sq ft home is possible (buyer to verify). Both lots come with current soils reports and surveys. Beverly Glen Place lot has architectural plans that have been structurally engineered. These can easily be modified and enlarged. All available upon request. Old house plans, reports and surveys for Bushrod lot also pass with sale. Bushrod Lane lot has amazing rock formations and small caves on the Northern section. Please check with LADBS for specific questions and details. Text or email for more information.

Map Location

Listing provided courtesy of Jeffrey Uecker of Elevado Properties. Last updated 2025-11-19 09:21:47.000000. Listing information © 2025 CRMLS.

The Lineup

The Lineup

admin Real estate https://static.royacdn.com/Site-02ef49e0-f0f4-404c-8ad8-e40f9a412cfb/inside_pages/about_img.jpg realtor https://static.royacdn.com/Site-02ef49e0-f0f4-404c-8ad8-e40f9a412cfb/inside_pages/about_img.jpg