Property Detail

16454 Adelanto

Adelanto CA 92301

$1,700,000

Status: Active

Property Details

Description

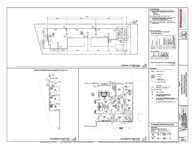
Prime 3.37-acre shovel-ready industrial lot at 16454 Adelanto Road, Adelanto, CA 92301. APN 3128-231-04. Zoned IL (Light Industrial). Owner advanced all entitlements, engineering, permits, and pre-construction requirements. Nothing vertical built, but the project is fully entitled and ready for immediate construction pending standard admin updates. All major fees, bonds, plans, and approvals are in place. Only the school impact fee remains; once paid, the City issues the Certificate of Compliance and the building permit can be pulled. Approved for a 46,742 SF truck-parts distribution facility featuring 9 dock-high and 2 grade-level truck doors, 2,500 SF office, guardhouse, and trash enclosure. Included is a Fire Department–approved 21-sheet construction plan set compliant with the 2022 CBC. Fire protection permit FCIC-2023-00001 is valid through 6/6/24. MDAQMD clearance application filed for clean warehouse use. School impact fee estimate: $24,773.26, payable by cashier’s check for Certificate of Compliance. Utilities and site improvements are prepped and ready. Electricity is connected on-site. Water, sewer (6" ABS), and gas are at the curb. Concrete curbs and driveway apron installed. The site offers gated access at both front and rear and is fully fenced by adjacent parcels. Pad is flat, compacted, and engineered for a 2,100 PSF soil bearing capacity. Excellent logistics location with rear exposure to Hwy 395 (25,000+ VPD) for signage and fleet access and direct frontage on the newly repaved Adelanto Rd, a four-lane truck route. Positioned between two operating industrial self-storage facilities and within five minutes of SCLA Airport and ten minutes of Interstate 15. Buyer path is straightforward: pay the school fee, obtain the Certificate of Compliance, submit the notice to proceed with grading, and begin foundation work—no rezoning, variances, or additional entitlements required. Drive by anytime; gate access and site walk available with agent. All documents, plans, and approvals are available in the supplements. All information is deemed reliable but not guaranteed. Buyer and buyer’s agents must verify all data, including zoning, permits, utilities, site details, fees, and plans. No warranties are made regarding accuracy or completeness. Buyer is responsible for all due diligence. Seller and broker disclaim any liability for errors, omissions, or changes.

Map Location

Listing provided courtesy of Enrique Vasquez-Plaza of Century 21 Masters. Last updated 2025-11-19 09:21:47.000000. Listing information © 2025 CRMLS.

The Lineup

The Lineup

admin Real estate https://static.royacdn.com/Site-02ef49e0-f0f4-404c-8ad8-e40f9a412cfb/inside_pages/about_img.jpg realtor https://static.royacdn.com/Site-02ef49e0-f0f4-404c-8ad8-e40f9a412cfb/inside_pages/about_img.jpg