Property Detail

14169 Emmerglen

Eastvale CA 92880

$1,279,000

Status: Active

Property Details

Description

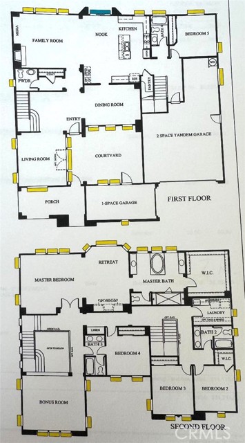
Discover this beautiful 4,305 sq ft home featuring 5 bedrooms, 4.5 bathrooms, and the rare convenience of dual staircases. A welcoming front porch leads to a private courtyard, creating a peaceful first impression. Step through the main front door into a grand foyer that sets the tone for the spacious layout. The living room offers elegant double French doors that open to the courtyard, while the separate dining room provides courtyard views and direct access to the kitchen. The island kitchen has granite countertops, a walk-in pantry, a built-in desk, and opens seamlessly to the family room with a cozy fireplace. Downstairs includes a private bedroom with a full bathroom, perfect for guests, along with an additional half bathroom for convenience. Each side of the home features its own staircase, enhancing flow and functionality. Upstairs, the primary suite impresses with a spacious sitting room, large walk-in shower, dual vanities, a center soaking tub, and a generous walk-in closet. A large loft, three additional bedrooms, two full bathrooms, and a laundry room with sink and cabinetry complete the second level. This home offers exceptional space, comfort, and thoughtful design throughout.

Map Location

Listing provided courtesy of Andrea Hove of Realty ONE Group West. Last updated 2025-11-17 09:23:09.000000. Listing information © 2025 CRMLS.

The Lineup

The Lineup

admin Real estate https://static.royacdn.com/Site-02ef49e0-f0f4-404c-8ad8-e40f9a412cfb/inside_pages/about_img.jpg realtor https://static.royacdn.com/Site-02ef49e0-f0f4-404c-8ad8-e40f9a412cfb/inside_pages/about_img.jpg