Property Detail

573 19th

Chico CA 95928

$344,000

Status: Active

Property Details

Description

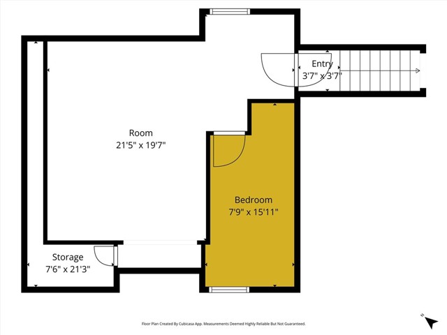
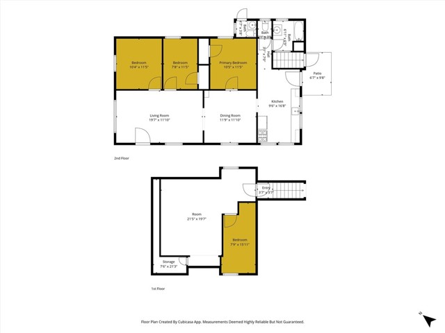
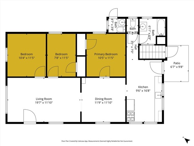
Chico Charmer in the beloved Barber District! Freshly painted inside and out, this three-bedroom home welcomes you with a spacious living room featuring a large picture window, new LVP flooring, and abundant natural light. Dual-pane windows and central HVAC provide modern comfort. Enjoy a generous dining room and an airy kitchen equipped with a gas range, refrigerator, and crisp white cabinetry. The main bathroom includes a separate water closet and a tub/shower combo for added convenience. The deep backyard showcases a cactus garden, beautiful drought-tolerant landscaping, and apricot, banana, and peach trees—a wonderful bonus for garden lovers. The west side yard offers a double gate ideal for vehicle or toy access, and the south side of the home provides an exterior-access bathroom and laundry hookups. A fully finished basement adds approximately 485 sq ft of additional living space, complete with recessed lighting and laminate flooring—perfect for a bonus room, office, or guest area. Centrally located, you’ll be minutes from downtown, shopping, dining, and local favorites like Chapman Water Park and 20th Street Park. Call today for your private showing!

Map Location

Listing provided courtesy of Danielle Branham of Century 21 Select Real Estate, Inc.. Last updated 2025-11-20 09:18:11.000000. Listing information © 2025 CRMLS.

The Lineup

The Lineup

admin Real estate https://static.royacdn.com/Site-02ef49e0-f0f4-404c-8ad8-e40f9a412cfb/inside_pages/about_img.jpg realtor https://static.royacdn.com/Site-02ef49e0-f0f4-404c-8ad8-e40f9a412cfb/inside_pages/about_img.jpg