Property Detail

11348 Reseda

Porter Ranch CA 91326

$3,500,000

Status: Active

Property Details

Description

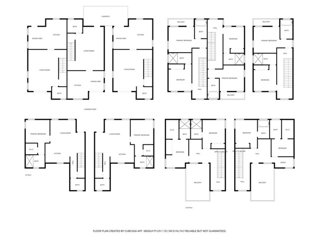
Brand-new 5-unit compound in Porter Ranch designed for multigenerational living, community-based housing, flexible residential use, and investment. Reimagined from a single-family lot, the property features two detached 3-bedroom, 3-bath homes and three 2-bedroom, 2-bath units across two additional structures, creating a low-density, campus-style setting that balances privacy with shared proximity. The layout is well suited for extended families, group living environments, or organizations seeking a residential setting that supports both independence and connection. Detached residences offer a single-family feel, enhancing livability and broad appeal. Currently under construction, this is an opportunity to acquire a newly developed asset with potential input on final finishes. Each unit is designed with open floor plans, contemporary kitchens, and efficient layouts aligned with modern living standards. As brand-new construction, the property offers all new systems, reduced maintenance requirements, and long-term operational efficiency, making it attractive for both owner-users and investors. The property will include five on-site parking spaces, including two covered, with additional street parking available. Conveniently located near shopping, dining, parks, freeway access, and major employment centers, this is a rare opportunity to acquire a versatile, newly constructed residential compound in one of the San Fernando Valley’s most desirable neighborhoods. Images have been digitally edited and/or are renderings and may not reflect the current condition of the property.

Map Location

Listing provided courtesy of Jimmy Rashid of Berkshire Hathaway HomeServices California Properties. Last updated 2026-03-21 08:24:18.000000. Listing information © 2025 CRMLS.

The Lineup

The Lineup

admin Real estate https://static.royacdn.com/Site-02ef49e0-f0f4-404c-8ad8-e40f9a412cfb/inside_pages/about_img.jpg realtor https://static.royacdn.com/Site-02ef49e0-f0f4-404c-8ad8-e40f9a412cfb/inside_pages/about_img.jpg