Property Detail

31920 Pine Cone

Running Springs CA 92382

$319,000

Status: Active

Property Details

Description

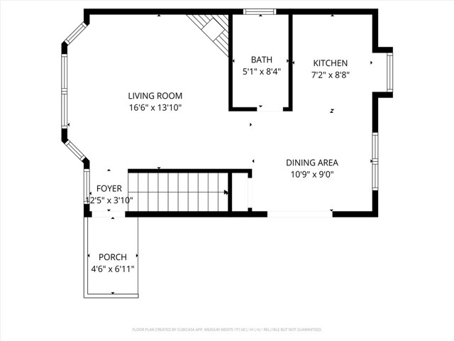
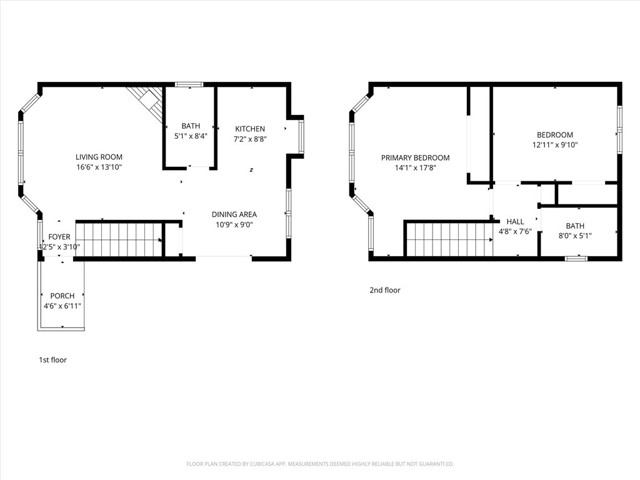
Charming and well-cared-for mountain retreat featuring a roof replaced in 2022 and a warm, inviting layout. Enter on the main level into the comfortable living room highlighted by a brick corner fireplace and an abundance of front windows that fill the space with natural light. The dining area offers built-in cabinetry, a ceiling fan, a storage/pantry closet, and sliding glass doors that lead directly to the deck, perfect for enjoying the peaceful mountain setting. This level also includes a convenient half bathroom combined with the laundry area. The galley-style kitchen is equipped with a double wall oven, a separate range, dishwasher, microwave, and a garden window overlooking the backyard. Upstairs you’ll find two bedrooms with vaulted ceilings that create an open, airy feel. The larger primary bedroom faces the front of the home and features multiple windows with a beautiful view, a ceiling fan, mirrored closet doors, and a built-in office nook. The second bedroom is situated toward the rear and also includes high ceilings, a ceiling fan, and mirrored closet doors. A full bathroom with tub/shower combo and a linen closet complete the upper level. Outside, a storage shed sits at the end of the deck, ideal for firewood or outdoor gear. The buildup area offers additional storage space, a utility sink, and a whole-house generator with transfer switch for added peace of mind. The property also includes private off-street parking for at least two vehicles. Conveniently located just off Highway 18 (Rim of the World Hwy) and within walking distance to local shops and services. Easy access to Highway 330, less than 6 miles to Snow Valley, approximately 13 miles to Lake Arrowhead, and about 15 miles to Big Bear Lake — making this a great home base for year-round mountain living and recreation.

Map Location

Listing provided courtesy of Angela Brown of First Team Real Estate. Last updated 2026-03-28 08:21:42.000000. Listing information © 2025 CRMLS.

The Lineup

The Lineup

admin Real estate https://static.royacdn.com/Site-02ef49e0-f0f4-404c-8ad8-e40f9a412cfb/inside_pages/about_img.jpg realtor https://static.royacdn.com/Site-02ef49e0-f0f4-404c-8ad8-e40f9a412cfb/inside_pages/about_img.jpg