Property Detail

2 Governors

Chico CA 95926

$566,250

Status: Active

Property Details

Description

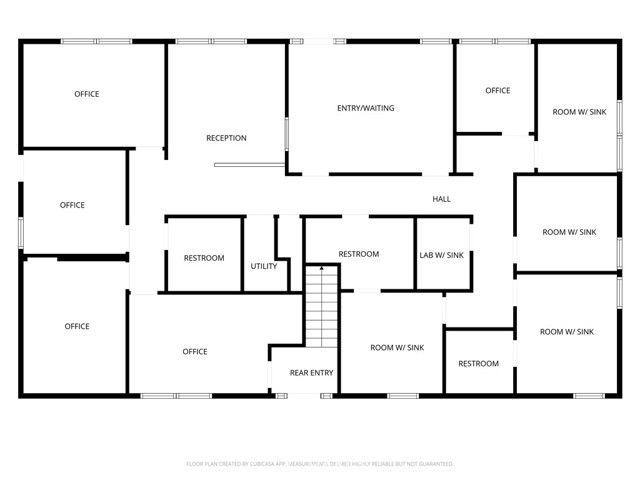
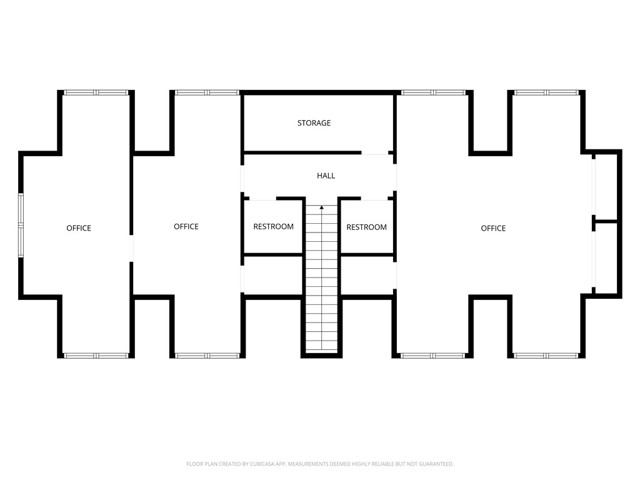
Fully leased medical office building offering approximately 3,408± square feet across two stories. Leased to Enloe Health under a full NNN lease, providing stable, passive income. The building features four exam rooms, four private offices, five restrooms, reception area, waiting room, three large work areas, and a break room. Located within a professional office complex with on-site parking and a well-maintained setting. Excellent opportunity for an investor seeking a turnkey, income-producing medical office asset.

Map Location

Listing provided courtesy of Carrie Welch of Capital Rivers Commercial Inc. Last updated 2026-04-04 08:28:35.000000. Listing information © 2025 CRMLS.

The Lineup

The Lineup

admin Real estate https://static.royacdn.com/Site-02ef49e0-f0f4-404c-8ad8-e40f9a412cfb/inside_pages/about_img.jpg realtor https://static.royacdn.com/Site-02ef49e0-f0f4-404c-8ad8-e40f9a412cfb/inside_pages/about_img.jpg