Property Detail

22153 Caminito Laureles

Laguna Hills CA 92653

$4,750

Status: Active

Property Details

Description

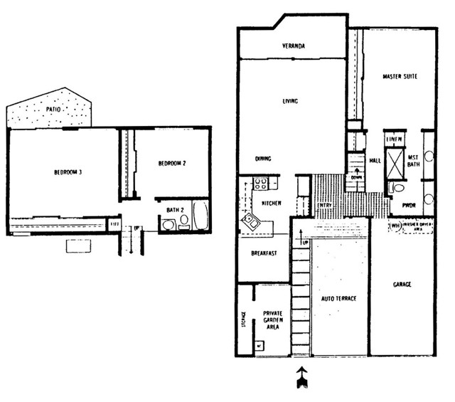
Beautifully furnished two-story Monterey model in the desirable Laguna Village community of Laguna Hills, offering a rare blend of space, privacy, and panoramic hillside views. This fully turnkey residence is thoughtfully designed for comfortable living with a seamless connection between indoor and outdoor spaces. A spacious courtyard entry creates a warm and inviting introduction—perfect for relaxing or entertaining. Inside, the light-filled living areas capture sweeping hillside vistas, filling the home with natural light and a sense of openness. The living room opens to a private balcony, an ideal setting to unwind, enjoy morning coffee, or take in the tranquil views. The home features three bedrooms and two-and-a-half baths, including a primary suite conveniently located on the main living level, providing ease and privacy. Two additional bedrooms are situated on the lower level, where a large gated patio offers an additional outdoor retreat—perfect for lounging, entertaining, or creating a private garden setting. Additional highlights include a single-car garage with an electric vehicle charger, tasteful furnishings throughout, and a truly move-in ready experience. Every detail has been considered to deliver comfort, convenience, and style. Located within the well-maintained Laguna Village community, residents enjoy access to resort-style amenities including pools, spas, a fitness center, tennis courts, and beautifully landscaped grounds, all just moments from shopping, dining, and major transportation corridors. For those seeking flexibility, this home presents an exceptional alternative to ownership—enjoy the benefits of a beautifully appointed residence without the long-term commitment of buying. Ideal for corporate relocations, executive stays, or extended accommodations for employees and consultants, this turnkey lease offers both convenience and a refined living experience. This is a rare opportunity to lease a fully furnished home with scenic views, multiple outdoor living spaces, and a versatile floor plan—simply bring your suitcase and enjoy.

Map Location

Listing provided courtesy of Cindy Uhrik of Compass. Last updated 2026-04-22 08:19:02.000000. Listing information © 2025 CRMLS.

The Lineup

The Lineup

admin Real estate https://static.royacdn.com/Site-02ef49e0-f0f4-404c-8ad8-e40f9a412cfb/inside_pages/about_img.jpg realtor https://static.royacdn.com/Site-02ef49e0-f0f4-404c-8ad8-e40f9a412cfb/inside_pages/about_img.jpg